Verkocht:Twistvlietpad 47, 8043 HT Zwolle - Foto
Verkocht
+34

Twistvlietpad 47 8043 HT Zwolle

  • Woonhuis
  • 5 kamers
  • 4 slaapkamers
  • 1 badkamers
  • Bouwjaar 2004
  • 182 m² perceeloppervlakte
  • 128 m² gebruiksoppervlakte
  • A+ Energielabel A+

Beschrijving

Uniek wonen in Zwolle? Dan hebben wij de ideale ruime eengezinswoning in de verkoop, gelegen aan de Twistvlietpad 47. Een toplocatie in de Rietkraag.
De Rietkraag is een prachtige woonbuurt op korte afstand van het Centrum van Stadshagen.
Deze woning heeft vrij uitzicht over het water in een kindvriendelijke omgeving.
Dankzij de centrale ligging biedt deze woning de ideale mix van rust en ruimte.
Alle belangrijke voorzieningen van de wijk Stadshagen zijn binnen handbereik.
Het uitgebreide winkelcentrum ligt op loopafstand, evenals diverse scholen en sportverenigingen.
Via de Twistvlietbrug bereik je op de fiets binnen 10 minuten het historische centrum van Zwolle, terwijl het openbaar vervoer zich op
loopafstand bevindt. Met de auto bent u binnen enkele minuten op de A 28, de gunstige ligging van de wijk brengt u filevrij de stad uit.
Kortom een prachtige woning in Hanzestad Zwolle waar je een scala aan gezelligheid en cultuur vindt.

De woning beschikt over drie ruime woonlagen. Omdat de woning hoger ligt dan de straat is er een trap van enkele treden om de voordeur
te bereiken. Ook heb je hier de beschikking over een mooi terras hier zit je heerlijk vrij en kun je genieten van een prachtig uitzicht over het
groen en water van het Rietpark.
De verzorgde achtertuin op het zuidwesten biedt tevens een fijn terras. Achter in de tuin staat een vrijstaande houten berging en
een praktische carport overkapping waar je een auto kunt parkeren.

Indeling

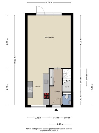
Entree, hal met meterkast, trapopgang, trapkast en strak afgewerkt toilet.

Ruime lichte woonkamer met prachtige leistenen vloer.
De woonkamer is aan de achterkant uitgebouwd. Via een tuindeur heeft u toegang tot een prachtige achtertuin gelegen op het zuidwesten.
Dé ideale plek om al vroeg in het voorjaar te genieten van de zon.
Vanuit de keuken, die zich aan de straatzijde bevindt, heeft u een ongestoord uitzicht over het Rietpark. De keuken is modern en volledig uitgerust. met alle benodigde apparatuur zoals bijvoorbeeld inductie kookplaat, afzuigkap, vaatwasser, combi oven/magnetron, koelkast en separate vriezer en een spoelbak met zwenkkraan.

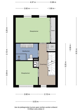
Eerste verdieping

Overloop die toegang biedt tot twee royale slaapkamers waarvan de masterbedroom een handige inbouwkast heeft.
De badkamer is voorzien van een prachtig groot badmeubel met dubbele wastafel en 4 ruime lades, 2de toilet, handdoekradiator en een separate douchehoek met glazen wand.
Ook bevindt zich op deze etage een aparte wasruimte voor de wasmachine en droger.

Tweede verdieping

Uitgevoerd met een grote dakkapel waarmee je extra ruimte creëert. De indeling bestaat uit een overloop en twee
royale slaapkamers met extra kastruimte.

Tuin

In de prachtige tuin bevindt u zich in een oase van groen.
Dankzij de volwassen beplanting en gunstige ligging is het hier heerlijk rustig en vrij zitten.
Een fijne plek om te ontspannen, spelen of gezellig buiten te eten.
De tuin is goed onderhouden en biedt volop mogelijkheden voor tuinliefhebbers.

Bijzonderheden

Toplocatie met uitzicht op het Rietpark
Centrale ligging, dichtbij winkels, scholen en uitvalswegen.
Slechts 10-15 minuten fietsen naar de binnenstad van Zwolle
Vier royale slaapkamers met airconditioning op de zolderverdieping
Moderne keuken aan de voorzijde van de woning
Moderne badkamer
Zonnige tuin op het zuidwesten met terras, zonnescherm en berging
Prachtige groene voor en achter tuin
15 zonnepanelen (2017)

Ben je op zoek naar een huis in een fijne groene omgeving ? Dan is een bezichtiging aan het Twistvlietpad 47 in Zwolle zeker de moeite waard.
Bel naar ons kantoor en we plannen graag een uitgebreide bezichtiging in.

In de koopovereenkomst zullen de volgende zaken worden opgenomen:
- Schriftelijkheidsvereiste: Partijen zijn pas gebonden niet eerder dan dat er een schriftelijke koopovereenkomst is getekend door beide partijen.
- In de koopovereenkomst zal een waarborgsom/bankgarantie worden opgenomen ter grootte van 10% van de koopsom.

Deze presentatie is informatief en geheel vrijblijvend. Aan eventuele onjuistheden kunnen geen rechten worden ontleend.

Kaart

Kenmerken

Overdracht

Referentienummer
538
Vraagprijs
€ 498.000,- k.k.
Elektra
€ 25,-
Gas
€ 125,-
Water
€ 23,-
Status
Verkocht
Aanvaarding
In overleg
Aangeboden sinds
Dinsdag 15 juli 2025
Laatste wijziging
Vrijdag 12 september 2025

Bouw

Type object
Woonhuis, eengezinswoning, tussenwoning
Soort bouw
Bestaande bouw
Bouwperiode
2004
Dakbedekking
Dakpannen
Type dak
Lessenaarsdak
Isolatievormen
Dakisolatie
HR-glas
Muurisolatie
Vloerisolatie

Oppervlaktes en inhoud

Perceeloppervlakte
182 m²
Woonoppervlakte
128 m²
Woonkameroppervlakte
30,75 m²
Keukenoppervlakte
10,42 m²
Inhoud
453 m³
Oppervlakte externe bergruimte
8,1 m²

Indeling

Aantal bouwlagen
3
Aantal kamers
5 (waarvan 4 slaapkamers)
Aantal badkamers
1 (en 1 apart toilet)

Locatie

Ligging
Aan water
In woonwijk

Tuin

Type
Achtertuin
Hoofdtuin
Ja
Oriëntering
Zuid-west
Heeft een achterom
Ja
Staat
Prachtig aangelegd
Tuin 2 - Type
Voortuin
Tuin 2 - Oriëntering
Noord-oost
Tuin 2 - Staat
Prachtig aangelegd

Energieverbruik

Energielabel
A+

CV ketel

CV ketel
Remeha Calenta
Warmtebron
Gas
Bouwjaar
2017
Combiketel
Ja
Eigendom
Eigendom

Uitrusting

Aantal parkeerplaatsen
1
Aantal overdekte parkeerplaatsen
1
Warm water
CV-ketel
Verwarmingssysteem
Centrale verwarming
Vloerverwarming (gedeeltelijk)
Ventilatie methode
Mechanische ventilatie
Natuurlijke ventilatie
Keukenvoorzieningen
Inbouwapparatuur
Badkamervoorzieningen
Douche
Dubbele wastafel
Toilet
Wastafelmeubel
Heeft airco
Ja
Glasvezelaansluiting aanwezig
Ja
Tuin aanwezig
Ja
Beschikt over een internetverbinding
Ja
Heeft schuur/berging
Ja
Heeft een dakraam
Ja
Heeft zonnepanelen
Ja
Heeft ventilatie
Ja

Kadastrale gegevens

Kadastrale aanduiding
Zwolle S 3566
Perceeloppervlakte
182 m²
Omvang
Geheel perceel
Eigendomsituatie
Eigen grond