Verkocht:Jan Jansstraat 39, 7582 BG Losser - Foto
Verkocht
+23

Jan Jansstraat 39 7582 BG Losser

  • Woonhuis
  • 4 kamers
  • 3 slaapkamers
  • 1 badkamers
  • Bouwjaar 1971
  • 121 m² perceeloppervlakte
  • 105 m² gebruiksoppervlakte
  • C Energielabel C

Beschrijving

Op zoek naar een woning die je volledig naar eigen smaak kunt moderniseren? Dan is deze tussenwoning aan de Jan Jansstraat 39 in Losser precies wat je zoekt!
Een ideale kans voor starters, jonge gezinnen of handige kopers die niet terugschrikken voor een renovatieproject.
Deze tussenwoning beschikt over een praktische indeling en verrassend veel ruimte. De woning is gedateerd, maar biedt volop mogelijkheden om er een eigentijds en comfortabel thuis van te maken.
Centrale ligging in een rustige woonstraat in Losser met de nodige voorzieningen zoals winkels, scholen en sportverenigingen in de buurt.
Goede bereikbaarheid richting Enschede en Duitsland.

Via de entree kom je in de woonkamer. De woonkamer is licht en biedt voldoende ruimte voor een gezellige zit- en eethoek.
De aangrenzende keuken is functioneel, maar toe aan vernieuwing - de kans om hier jouw droomkeuken te realiseren.
Tussen de woonkamer en de keuken heb je toegang tot een aparte hal met de trapopgang naar boven hier bevindt zich ook het toilet.

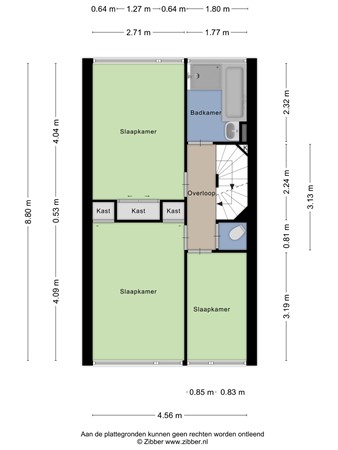
Op de eerste verdieping bevinden zich maar liefst drie slaapkamers van goed formaat.
Ideaal als hoofdslaapkamer, kinderkamer of thuiswerkperk.
De badkamer is gedateerd en biedt mogelijkheden voor modernisering.
Extra pluspunt: een apart toilet op de eerste verdieping.

De ruime zolder biedt volop bergruimte en kan - afhankelijk van je wensen - worden ingericht als extra slaapkamer, hobbyruimte of werkplek.

De woning beschikt over een achtertuin met houten schuur. Een fijne plek om te ontspannen en te genieten van het buitenleven.
De schuur biedt praktische opslagruimte voor fietsen en tuinspullen.

Ben je klaar om deze woning om te toveren tot jouw ideale thuis?
Maak dan snel een afspraak voor een bezichtiging en ontdek de mogelijkheden.

Kaart

Kenmerken

Overdracht

Referentienummer
586
Vraagprijs
€ 209.000,- k.k.
Status
Verkocht
Aanvaarding
In overleg
Aangeboden sinds
Vrijdag 27 februari 2026

Bouw

Type object
Woonhuis, eengezinswoning, tussenwoning
Soort bouw
Bestaande bouw
Bouwperiode
1971
Dakbedekking
Dakpannen
Type dak
Dwarskap
Isolatievormen
Gedeeltelijk dubbel glas
Spouwmuren

Oppervlaktes en inhoud

Perceeloppervlakte
121 m²
Woonoppervlakte
104,9 m²
Woonkameroppervlakte
23 m²
Keukenoppervlakte
20,5 m²
Inhoud
372 m³
Oppervlakte externe bergruimte
8,1 m²

Indeling

Aantal bouwlagen
3
Aantal kamers
4 (waarvan 3 slaapkamers)
Aantal badkamers
1 (en 2 aparte toiletten)

Tuin

Type
Achtertuin
Hoofdtuin
Ja
Staat
Verwaarloosd

Energieverbruik

Energielabel
C

CV ketel

CV ketel
AWB ketel
Warmtebron
Gas
Combiketel
Ja

Uitrusting

Warm water
CV-ketel
Verwarmingssysteem
Airconditioning
Centrale verwarming
Badkamervoorzieningen
Douche
Ligbad
Wastafel
Heeft airco
Ja
Heeft kabel-tv
Ja
Tuin aanwezig
Ja
Beschikt over een internetverbinding
Ja
Heeft schuur/berging
Ja