Nieuw in verkoop:Lipperkerkstraat 132, 7511 DD Enschede - Foto
Nieuw in verkoop
+22

Lipperkerkstraat 132 7511 DD Enschede € 279.000,- k.k.

  • Woonhuis
  • 4 kamers
  • 3 slaapkamers
  • 1 badkamer
  • Bouwjaar 1901
  • 247 m² perceeloppervlakte
  • 94 m² gebruiksoppervlakte
  • F Energielabel F

Beschrijving

Een betaalbare woning waar je zó in kunt – comfortabel, sfeervol en direct genieten.

Deze charmante helft van een 2-onder-1-kapwoning combineert karakter met het comfort van nu. Dankzij de renovatie in 2019 is alles al aangepakt: een moderne keuken, een stijlvolle badkamer en een frisse afwerking door de hele woning. Je hoeft alleen nog je meubels neer te zetten.

Ideaal voor starters of doorstromers die op zoek zijn naar een instapklare woning op een fijne plek, met zowel de binnenstad als de natuur op korte afstand.

Kortom: betaalbaar, sfeervol en direct te betrekken. Precies wat je zoekt.

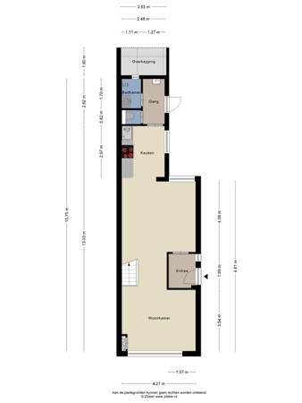
Indeling

Via de entree stap je binnen in de hal, die toegang geeft tot de woonkamer.

De sfeervolle doorzonwoonkamer vormt het hart van de woning: een fijne, lichte leefruimte met een moderne afwerking en een warme uitstraling. Grote raampartijen zorgen voor een prettige lichtinval gedurende de hele dag. Vanuit de woonkamer leidt een eigentijdse trap naar de eerste verdieping, wat niet alleen praktisch is, maar ook zorgt voor een speels en stijlvol geheel.

Aan de achterzijde bevindt zich de moderne keuken, uitgevoerd in een strakke opstelling en voorzien van diverse inbouwapparatuur, waaronder een oven, vaatwasser, koelkast, keramische kookplaat en afzuigkap. Daarnaast is er volop kastruimte, waardoor koken hier niet alleen prettig, maar ook praktisch is.

De keuken staat in directe verbinding met een handig halletje, dat toegang biedt tot de tuin, de badkamer en het separate toilet op de begane grond – een fijne en functionele indeling.

De badkamer is modern en verzorgd afgewerkt en beschikt over een wastafelmeubel en een douchehoek. Compact, maar compleet en klaar voor dagelijks gebruik.

Eerste verdieping

Op de eerste verdieping ontvouwt zich een volwaardige slaapverdieping met drie verrassend ruime slaapkamers. Stuk voor stuk prettige kamers met een fijne lichtinval en een rustige uitstraling, waardoor ze zich moeiteloos lenen als slaapkamer, werkkamer of kleedruimte. De in 2019 vernieuwde vloerbedekking sluit hier naadloos op aan en versterkt het warme, verzorgde geheel. Een verdieping die niet alleen praktisch is, maar ook voelt als een comfortabele plek om je terug te trekken.

Tuin

De diepe en lange achtertuin op het zuiden biedt volop potentie voor wie graag buiten leeft en het leuk vindt om een tuin geheel naar eigen smaak vorm te geven. Op dit moment is de tuin nog niet aangelegd, maar juist dat maakt dit een mooie kans: hier creëer je naar eigen inzicht een heerlijke buitenruimte met zon, groen en privacy.

Dankzij de gunstige ligging op het zuiden geniet je hier straks de hele dag van de zon – van een kop koffie in de ochtend tot lange zomeravonden achterin de tuin. Daarnaast beschikt de tuin over een praktische achterom en een berging, wat het geheel extra functioneel maakt.

Achter de aanbouw is bovendien een overkapping gerealiseerd. Een fijne plek die, na wat aandacht en aankleding, kan uitgroeien tot een beschutte zitplek waar je in alle rust kunt ontspannen en optimaal kunt genieten van de avondzon.

Kortom: een tuin met ruimte, zon én mogelijkheden – klaar om er jouw eigen plek van te maken.

Bijzonderheden

- Bouwjaar: 1901
- Eind 2019 is deze gehele woning gerenoveerd, o.a. nieuwe keuken, nieuwe vloeren, nieuwe badkamer, toiletruimte en elektra
- De gehele woning is voorzien van nieuwe vloeren (beneden laminaat en boven tapijt)
- Aantal slaapkamers: 3
- Energielabel: F
- CV-ketel: HR Combi (2018)
- Overkapping aanwezig
- Openbaar parkeren in de straat
- Diepe tuin met achterom

In de koopovereenkomst zullen onder andere de volgende zaken worden opgenomen:
- Partijen zijn eerst gebonden nadat een schriftelijke koopovereenkomst door beide partijen is ondertekend (schriftelijkheidsvereiste);
- Er zal een ouderdomsclausule en asbestclausule worden opgenomen;
- In de koopovereenkomst zal een niet-zelfbewoningsclausule worden opgenomen;
- Koper zal een waarborgsom dan wel bankgarantie stellen ter grootte van 10% van de koopsom;
- De clausule NEN2580 is van toepassing.

Kaart

Kenmerken

Overdracht

Referentienummer
592
Vraagprijs
€ 279.000,- k.k.
Status
Nieuw in verkoop
Aanvaarding
In overleg
Aangeboden sinds
Zaterdag 18 april 2026

Bouw

Type object
Woonhuis, eengezinswoning, twee onder een kap woning
Soort bouw
Bestaande bouw
Bouwperiode
1901
Dakbedekking
Dakpannen
Type dak
Zadeldak
Isolatievormen
HR-glas

Oppervlaktes en inhoud

Perceeloppervlakte
247 m²
Woonoppervlakte
94,3 m²
Woonkameroppervlakte
52,65 m²
Keukenoppervlakte
7,37 m²
Inhoud
334 m³
Oppervlakte externe bergruimte
15,3 m²
Oppervlakte gebouwgebonden buitenruimte
4,2 m²

Indeling

Aantal bouwlagen
2
Aantal kamers
4 (waarvan 3 slaapkamers)
Aantal badkamers
1 (en 1 apart toilet)

Locatie

Ligging
In woonwijk

Tuin

Type
Achtertuin
Hoofdtuin
Ja
Oriëntering
Zuiden
Staat
Verwaarloosd

Energieverbruik

Energielabel
F

CV ketel

CV ketel
Remeha Tzerra M 28C plus CCS
Warmtebron
Gas
Bouwjaar
2018

Uitrusting

Warm water
CV-ketel
Verwarmingssysteem
Centrale verwarming
Ventilatie methode
Natuurlijke ventilatie
Badkamervoorzieningen
Douche
Wastafel
Heeft kabel-tv
Ja
Glasvezelaansluiting aanwezig
Ja
Tuin aanwezig
Ja
Telefoonaansluiting aanwezig
Ja
Heeft schuur/berging
Ja

Kadastrale gegevens

Kadastrale aanduiding
Enschede D 9000
Perceeloppervlakte
247 m²
Omvang
Geheel perceel
Eigendomsituatie
Eigen grond

Media

Plattegronden