Verhuurd:De Vluchtestraat 40, 7523 BH Enschede - Foto
Verhuurd
+28

De Vluchtestraat 40 7523 BH Enschede

  • Woonhuis
  • 4 kamers
  • 3 slaapkamers
  • 1 badkamers
  • Bouwjaar 1928
  • 158 m² perceeloppervlakte
  • 120 m² gebruiksoppervlakte
  • Gemeubileerd
  • B Energielabel B

Beschrijving

Bricks Twente Makelaars biedt te huur aan;

Aan de Vluchtestraat 40 in Enschede bieden wij een karakterstieke twee-onder-een-kap-woning aan.
De woning is volledig ingericht en voorzien van alle moderne gemakken.
Ideaal voor wie direct comfortabel wil wonen.

De woning beschikt over een karakterstieke entree met nog oude elementen een royale en sfeervolle woonkamer en een compleet uitgeruste keuken.
Een ideaal huis voor wie op zoek is naar ruimte, licht en comfort. Het huis biedt veel ruimte en privacy doordat het een twee-onder-een-kap woning is met een fijne tuin (met extra opslag of werkruimte en een mooie overkapping voor de zonnige zomeravonden). De woning beschikt over drie slaapkamers voorzien van airco en een moderne badkamer. Het huis is helemaal instap klaar.

Twekkelerveld is een gezellige wijk met alle voorzieningen die je nodig hebt. Er zijn voldoende leuke restaurants en cafeetjes om lekker uit eten te gaan of gezellig te borrelen. Ook zijn er veel verschillende winkels in de buurt, van supermarkten tot kleine boetiekjes. De Universiteit ligt op slechts tien minuten fietsen en ook de autosnelweg is goed te bereiken.

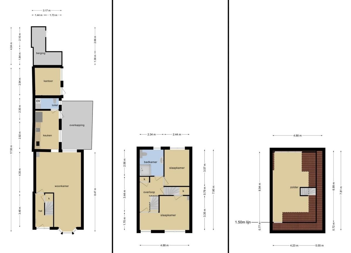
Indeling:
BG: entree, hal met garderobe, ruime doorzon woonkamer. Half-open keuken welke is voorzien van bijna alle benodigde apparatuur. Wasruimte met wasmachine en droger. Toilet. Toegang tot de tuin. De tuin is mooi aangelegd en biedt veel privacy.

1e verdieping: badkamer v.v. douche, toilet en wastafelmeubel. 2 slaapkamers welke beide zijn voorzien van airconditioning.

2e verdieping: Ruime slaapkamer v.v. airconditioning.

Bijzonderheden:
- Huurprijs is inclusief meubilering.
- Huurder dient zelf de contracten voor gas/water/elektra/internet aan te vragen.
- Niet te huur voor studenten(groepen).

Kaart

Kenmerken

Overdracht

Referentienummer
559
Huurprijs
€ 1.500,- per maand (gemeubileerd, gestoffeerd)
Borg
€ 3.000,-
Inrichting
Ja
Inrichting
Gemeubileerd
Status
Verhuurd
Aanvaarding
In overleg
Aangeboden sinds
Vrijdag 17 oktober 2025

Bouw

Type object
Woonhuis, eengezinswoning, twee onder een kap woning
Soort bouw
Bestaande bouw
Bouwperiode
1928
Dakbedekking
Dakpannen
Type dak
Mansardedak
Isolatievormen
HR-glas

Oppervlaktes en inhoud

Perceeloppervlakte
158 m²
Woonoppervlakte
120 m²
Inhoud
300 m³

Indeling

Aantal bouwlagen
3
Aantal kamers
4 (waarvan 3 slaapkamers)
Aantal badkamers
1

Tuin

Type
Achtertuin

Energieverbruik

Energielabel
B

CV ketel

Warmtebron
Gas
Combiketel
Ja
Eigendom
Eigendom

Uitrusting

Warm water
CV-ketel
Verwarmingssysteem
Airconditioning
Centrale verwarming
Ventilatie methode
Natuurlijke ventilatie
Badkamervoorzieningen
Douche
Toilet
Wastafel
Wastafelmeubel
Heeft airco
Ja
Glasvezelaansluiting aanwezig
Ja
Tuin aanwezig
Ja
Beschikt over een internetverbinding
Ja
Heeft schuur/berging
Ja