Sfeervolle jaren '30 woning in geliefde wijk nabij het centrum. Welkom aan de Hyacintstraat 18 in Enschede – een charmante en goed onderhouden jaren '30 twee-onder-een-kapwoning, perfect voor gezinnen of stellen die op zoek zijn naar karakter, comfort en een centrale ligging. Deze woning combineert authentieke details met modern woongenot en is gelegen in de rustige en groene wijk Schreurserve, op korte afstand van het bruisende stadscentrum, scholen, sportfaciliteiten, winkels en openbaar vervoer.
Indeling
Entree via een authentieke hal met granitovloer en glas-in-loodramen. De royale woonkamer is licht en modern. De nette keuken is voorzien van inbouwapparatuur en biedt toegang tot de wasruimte en het separate toilet.
Eerste verdieping
Via de overloop op de eerste verdieping kom je bij twee ruime slaapkamers en de badkamer. De woning is uitgebouwd, waardoor er een extra ruimte is ontstaan waarin de moderne badkamer is gerealiseerd, compleet met inloopdouche, wastafelmeubel en toilet.
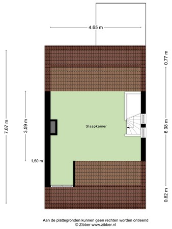
Tweede verdieping
Een vaste trap biedt toegang tot de 2e verdieping met een overloop en een royale derde slaapkamer met grote dakkapel.
Tuin
De zonnige diepe achtertuin is gelegen op het zuidoosten en biedt veel privacy, groen en mogelijkheden om heerlijk buiten te zitten.
Bijzonderheden
Woonoppervlakte: 107 m2 Perceeloppervlakte: 181 m2 Bouwjaar: 1938 Aantal kamers: 4 (waarvan 3 slaapkamers) Aantal woonlagen: 3 Energielabel: E
In de koopovereenkomst zullen de volgende zaken worden opgenomen: - Partijen zijn pas gebonden niet eerder dan dat er een schriftelijke koopovereenkomst is getekend door partijen (schriftelijkheidsvereiste); - In de koopovereenkomst zal een ouderdoms- en asbestclausule worden opgenomen; - In de koopovereenkomst zal een niet-zelfbewoningsclausule worden opgenomen; - In de koopovereenkomst zal een waarborgsom/bankgarantie worden opgenomen ter grootte van 10% van de koopsom.
Deze presentatie is informatief en geheel vrijblijvend. Aan eventuele onjuistheden kunnen geen rechten worden ontleend.
Kaart
Kenmerken
Overdracht
Referentienummer
532
Vraagprijs
€ 325.000,- k.k.
Elektra
€ 35,-
Gas
€ 180,-
Water
€ 14,-
Status
Verkocht
Aanvaarding
In overleg
Aangeboden sinds
Zondag 8 juni 2025
Laatste wijziging
Woensdag 6 augustus 2025
Bouw
Type object
Woonhuis, eengezinswoning, twee onder een kap woning
Soort bouw
Bestaande bouw
Bouwperiode
1938
Dakbedekking
Dakpannen
Type dak
Zadeldak
Isolatievormen
HR-glas Spouwmuren
Oppervlaktes en inhoud
Perceeloppervlakte
181 m²
Woonoppervlakte
107 m²
Woonkameroppervlakte
31,14 m²
Keukenoppervlakte
5,91 m²
Inhoud
350 m³
Indeling
Aantal bouwlagen
3 (en 1 kelder)
Aantal kamers
4 (waarvan 3 slaapkamers)
Aantal badkamers
1 (en 1 apart toilet)
Locatie
Ligging
Aan rustige weg Dichtbij openbaar vervoer In woonwijk Nabij school